Foto leveres af Google Street View og kan være upræcist:
Lager til leje, Maribo, V Henriksens Vej 10
V Henriksens Vej 10, 4930 Maribo- Lager til leje
- 1.113 m2
- 33.946 kr. per måned
V Henriksens Vej 10, 4930 Maribo
- Lager til leje
- 1.113 m2
- 33.946 kr. per måned
Få mere info
Du linkes til en anden portal, som evt. kan kræve betaling eller oprettelse
Lager til leje, Maribo, V Henriksens Vej 10
Fakta
- 314468
- Lager
- 1.113 m2
- 407.358 kr.
- 33.946 kr.
- 407.358 kr.
- 33.946 kr.
- 366 kr.
- 366 kr.
Flot præsentabel Ejendom
Pæn og præsentabel lager / produktions ejendom, beliggende i Industrikvarteret i Maribo få km Fra Syd motorvejen.
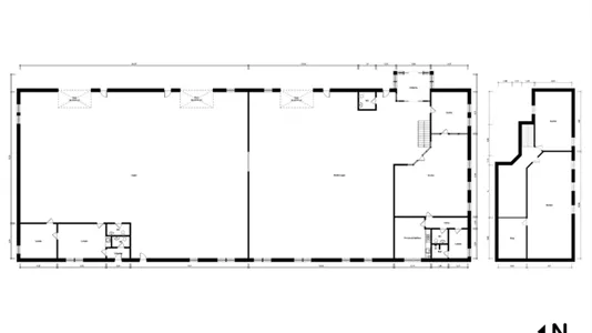
Ejendommen er på 1.113 m2 og bestående af hal med loft til kip, samt et kontorområde, køkken, flere toiletter mv.
Der er 3 ledhejseporte på facade samt automatisk skydedør. Over kontorafsnit er der på 1 sal et fint lokale, der kan bruges til møderum eller til mere lagerplads
Ejendommen er overalt isoleret og der er isat nye døre og vinduer.
De 3 porte til hallen, er Bredde 3,8 M og Højde 3,5 M
Lejen er kun kr. 34.000 pr. md.
lejen er opgivet inkl. drift. Kun el, vand, varme og kommer oven på lejeprisen.
Ejendommen er på 1.113 m2 og bestående af hal med loft til kip, samt et kontorområde, køkken, flere toiletter mv.
Der er 3 ledhejseporte på facade samt automatisk skydedør. Over kontorafsnit er der på 1 sal et fint lokale, der kan bruges til møderum eller til mere lagerplads
Ejendommen er overalt isoleret og der er isat nye døre og vinduer.
De 3 porte til hallen, er Bredde 3,8 M og Højde 3,5 M
Lejen er kun kr. 34.000 pr. md.
lejen er opgivet inkl. drift. Kun el, vand, varme og kommer oven på lejeprisen.
Information og data
Dette lagerlokale ligger på V Henriksens Vej i Maribo. Maribo har postnummeret 4930, og ligger i kommunen Lolland, som ligger på Region Sjælland. Lokalet er i alt 1113 m2. Lejepris: 407.358 kr. per år.