Foto leveres af Google Street View og kan være upræcist:
Lager til leje, Ishøj, Broenge 1
Broenge 1, 2635 Ishøj- Lager til leje
- 1.755 m2
- 97.158 kr. per måned
Broenge 1, 2635 Ishøj
- Lager til leje
- 1.755 m2
- 97.158 kr. per måned
Kontakt udlejeren nu
Du linkes til en anden portal, som evt. kan kræve betaling eller oprettelse
Lager til leje, Ishøj, Broenge 1
Fakta
- 285562
- Lager
- 1.755 m2
- 1.165.900 kr.
- 97.158 kr.
- 664,33 kr.
KONTAKT UDLEJEREN NU
Du linkes til en anden portal, som evt. kan kræve betaling eller oprettelse
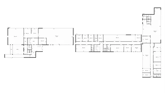
VELHOLDT OG FUNKTIONEL KONTOR-OG LAGEREJENDOM
• Velbeliggende ejendom med god fordeling mellem lager og kontor.
• Ejendommen har mange gode anvendelsesmuligheder, og rummer storelyse lokaler, som bl.a.eroplagtetil showroom eller lign.
• Ejendommens beliggenhed giver nem adgang til både København, Roskilde, Køge og Nordsjælland via nærliggende motorveje.
• Ejendommen har 3 store porte, som giver gode sikkerheds-og logistik forhold.
• Indhegnet matrikel med mulighed for udendørs oplag.
• Ejendommen har rigtig gode tilkørselsforhold, og ekstraordinær plads til parkering.
• Ejendommen er omfattet af lokalplan 1.86 som giver tilladelse til følgende anvendelse: værksteder, mindre industriformål, produktion, transport, lager, herunder høj lagre, offentlige formål som materialegård samt engroshandel og administration/kontor tilknyttet de nævnte erhverv.
• Lejemålet kan istandsættes efter aftale med udlejer, som også tilbyder fleksible indretningsmuligheder, så det tilpasses lejers behov.
• Høj synlighed mod Vejleåvej–ideelt til virksomheder med behov for eksponering
• Ejendommen har mange gode anvendelsesmuligheder, og rummer storelyse lokaler, som bl.a.eroplagtetil showroom eller lign.
• Ejendommens beliggenhed giver nem adgang til både København, Roskilde, Køge og Nordsjælland via nærliggende motorveje.
• Ejendommen har 3 store porte, som giver gode sikkerheds-og logistik forhold.
• Indhegnet matrikel med mulighed for udendørs oplag.
• Ejendommen har rigtig gode tilkørselsforhold, og ekstraordinær plads til parkering.
• Ejendommen er omfattet af lokalplan 1.86 som giver tilladelse til følgende anvendelse: værksteder, mindre industriformål, produktion, transport, lager, herunder høj lagre, offentlige formål som materialegård samt engroshandel og administration/kontor tilknyttet de nævnte erhverv.
• Lejemålet kan istandsættes efter aftale med udlejer, som også tilbyder fleksible indretningsmuligheder, så det tilpasses lejers behov.
• Høj synlighed mod Vejleåvej–ideelt til virksomheder med behov for eksponering
Information og data
Dette lagerlokale ligger på Broenge i Ishøj. Ishøj har postnummeret 2635, og ligger i kommunen Ishøj, som ligger i Storkøbenhavn. Lokalet er i alt 1755 m2. Lejepris: 1.165.900 kr. per år.