Foto leveres af Google Street View og kan være upræcist:
Lager til leje, Århus N, Jens Baggesens Vej 92E
Jens Baggesens Vej 92E, 8200 Århus N- Lager til leje
- Ca. 205 m2
Jens Baggesens Vej 92E, 8200 Århus N
- Lager til leje
- Ca. 205 m2
Få mere info
Du linkes til en anden portal, som evt. kan kræve betaling eller oprettelse
Lager til leje, Århus N, Jens Baggesens Vej 92E
Ringgade CentretJens Baggesens Vej 88-90A m.fl, Aarhus
Vi har nu fornøjelsen af at tilbyde et veldisponeret lagerlejemål med egen port ved Ringgade Centret på Jens Baggesens Vej i Aarhus N. Lagerlejemålet er opført i forbindelse med boligbyggeriet Mejerihøjen og kan foruden lagerplads også byde på kontorplads, frokoststue med køkkenfaciliteter og omklædning med bad.
Området
Lejemålet er særdeles centralt placeret på toppen af Jens Baggesens Vej i Aarhus N, med nem tilkørselsadgang fra såvel indre som ydre Ringgade. Ejendommen er beliggende i et erhvervs- og kulturelt orienteret byområde, der rummer erhvervsvirksomheder, Storcenter Nord, Aarhus Universitet, Handelshøjskolen, og Forskerparken foruden privat beboelse. Parkeringspladser kan tillejes lejemålet, alle med adgang fra Jens Baggesens Vej og Hangøvej. Fra lejemålet er der kort afstand til bymidten og let adgang til alle udfaldsvejene samt motorveje, ligesom der er bybusforbindelser og letbane indenfor gåafstand. Derudover forefindes fitnesscenter et stenkast fra lejemålet i den tidligere produktionshal samt lejligheder og kontorer som naboer.
Ejendommen
Ejendommens facade byder velkommen med teglsten i gyldne varme nuancer og brune aluminiums døre/vinduer/port. På ejendommens tag forefindes det nye gårdmiljø som er etableret i forbindelse med boligbyggeriet Mejerihøjen. Gårdmiljøet er offentlig tilgængelig, og kan derfor også benyttes af ny lejer.
Lejemålet
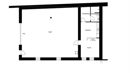
Lagerlejemålet består af i alt 204 m² fordelt på et plan med egen port og henvender sig til virksomheder som ønsker et lager placeret tæt på Aarhus centrum. Lejemålet entreres fra parkeringsplads på Hangøvej via elektronisk aluminiumsport eller fordør. Forrummet i lejemålet er anvendeligt til lager og fremstår i råt look med beton gulve og lofter, synlige installationer, flere kraft-stik og stålvask samt ovenlys. Der er installeret fjernvarme i lageret.
Fra forrummet er der adgang til et lille kontor med tekøkken samt omklædning med brus og toilet.
Ej muligt at benytte lejemålet til autoværksted, svejseværksted eller anden type af værksted med oliespild, herunder EJ til produktionskøkken eller øvrig madlavning.
Et hypermoderne mejerikompleks
Jens Baggesens Vej ligger i den sydlige ende af Christiansbjerg – et navn, som området officielt har haft siden slutningen af 1800-tallet. I starten af 1900-tallet begynder Aarhus at vokse, og byen breder sig ud mod de omkringliggende forstæder. Flere boligkvarterer rundt om den gamle by skyder frem, ligesom erhverv og industri finder vej til det nye kvarter. I 1920’erne og 1930’erne anlægges Ringgaden – den skal både forbinde byens ydre dele med hinanden og lede landevejstrafikken uden om byen, men det gør det også attraktivt og praktisk at drive virksomhed i nærheden.
I området omkring Jens Baggesens Vej spirer der gennem årene meget forskellig industri op. I slutningen af 1950’erne flytter Tage Vanggaard sin blomstrende kjoleproduktion fra Jægergårdsgade til en nyopført fabrik på hjørnet af Vestre Ringgade og Paludan Müllers Vej. Her vokser produktionen, så han i 1970’erne kan kalde sig indehaver af Danmarks største kjolefabrik. Også pålægsfabrikken Defco, der gennem årtier har leveret rullepølse, roastbeef og andet kødpålæg til madpakker og frokostborde, holder til i området – nærmere bestemt på Helsingforsgade.
Sidst, men ikke mindst opførte de Forenede Mejerier i årene 1955-1958 et kæmpe mejeri som forsynede både aarhusianerne og de amerikanske tropper i Vesttyskland med mælk. Den store produktionshal og administrationsbygningen ligger der stadig og danner Ringgade Centret. Når man træner i det store fitnesscenter – som nu ligger i den forhenværende produktionshal – står man faktisk midt i et stykke aarhusiansk mejerihistorie. I dag er samtlige bygninger udlejet til forskellige typer af erhverv.
Området
Lejemålet er særdeles centralt placeret på toppen af Jens Baggesens Vej i Aarhus N, med nem tilkørselsadgang fra såvel indre som ydre Ringgade. Ejendommen er beliggende i et erhvervs- og kulturelt orienteret byområde, der rummer erhvervsvirksomheder, Storcenter Nord, Aarhus Universitet, Handelshøjskolen, og Forskerparken foruden privat beboelse. Parkeringspladser kan tillejes lejemålet, alle med adgang fra Jens Baggesens Vej og Hangøvej. Fra lejemålet er der kort afstand til bymidten og let adgang til alle udfaldsvejene samt motorveje, ligesom der er bybusforbindelser og letbane indenfor gåafstand. Derudover forefindes fitnesscenter et stenkast fra lejemålet i den tidligere produktionshal samt lejligheder og kontorer som naboer.
Ejendommen
Ejendommens facade byder velkommen med teglsten i gyldne varme nuancer og brune aluminiums døre/vinduer/port. På ejendommens tag forefindes det nye gårdmiljø som er etableret i forbindelse med boligbyggeriet Mejerihøjen. Gårdmiljøet er offentlig tilgængelig, og kan derfor også benyttes af ny lejer.
Lejemålet
Lagerlejemålet består af i alt 204 m² fordelt på et plan med egen port og henvender sig til virksomheder som ønsker et lager placeret tæt på Aarhus centrum. Lejemålet entreres fra parkeringsplads på Hangøvej via elektronisk aluminiumsport eller fordør. Forrummet i lejemålet er anvendeligt til lager og fremstår i råt look med beton gulve og lofter, synlige installationer, flere kraft-stik og stålvask samt ovenlys. Der er installeret fjernvarme i lageret.
Fra forrummet er der adgang til et lille kontor med tekøkken samt omklædning med brus og toilet.
Ej muligt at benytte lejemålet til autoværksted, svejseværksted eller anden type af værksted med oliespild, herunder EJ til produktionskøkken eller øvrig madlavning.
Et hypermoderne mejerikompleks
Jens Baggesens Vej ligger i den sydlige ende af Christiansbjerg – et navn, som området officielt har haft siden slutningen af 1800-tallet. I starten af 1900-tallet begynder Aarhus at vokse, og byen breder sig ud mod de omkringliggende forstæder. Flere boligkvarterer rundt om den gamle by skyder frem, ligesom erhverv og industri finder vej til det nye kvarter. I 1920’erne og 1930’erne anlægges Ringgaden – den skal både forbinde byens ydre dele med hinanden og lede landevejstrafikken uden om byen, men det gør det også attraktivt og praktisk at drive virksomhed i nærheden.
I området omkring Jens Baggesens Vej spirer der gennem årene meget forskellig industri op. I slutningen af 1950’erne flytter Tage Vanggaard sin blomstrende kjoleproduktion fra Jægergårdsgade til en nyopført fabrik på hjørnet af Vestre Ringgade og Paludan Müllers Vej. Her vokser produktionen, så han i 1970’erne kan kalde sig indehaver af Danmarks største kjolefabrik. Også pålægsfabrikken Defco, der gennem årtier har leveret rullepølse, roastbeef og andet kødpålæg til madpakker og frokostborde, holder til i området – nærmere bestemt på Helsingforsgade.
Sidst, men ikke mindst opførte de Forenede Mejerier i årene 1955-1958 et kæmpe mejeri som forsynede både aarhusianerne og de amerikanske tropper i Vesttyskland med mælk. Den store produktionshal og administrationsbygningen ligger der stadig og danner Ringgade Centret. Når man træner i det store fitnesscenter – som nu ligger i den forhenværende produktionshal – står man faktisk midt i et stykke aarhusiansk mejerihistorie. I dag er samtlige bygninger udlejet til forskellige typer af erhverv.
Information og data
Dette lagerlokale ligger på Jens Baggesens Vej i Århus N. Århus N har postnummeret 8200, og ligger i kommunen Aarhus, som ligger i Århus. Lokalet er i alt 204 m2.