Foto leveres af Google Street View og kan være upræcist:

Kontor til leje, Snedsted, Se vej-navn[xxxxxxxxxx]

Se vej-navn[xxxxxxxxxx], 7752 Snedsted
  • Kontor til leje
  • 20 - 2.500 m2
Kontor til leje, Snedsted, <span class="blurred street" onclick="ProcessAdRequest(1206)"><span class="hint">Se vej-navn</span>[xxxxxxxxxx]</span>
Se vej-navn[xxxxxxxxxx], 7752 Snedsted
  • Kontor til leje
  • 20 - 2.500 m2
Få mere info
Du linkes til en anden portal, som evt. kan kræve betaling eller oprettelse

Kontor til leje, Snedsted, Se vej-navn[xxxxxxxxxx]

Fakta

  • 1206
  • Kontor
  • Lager
  • Værksted
  • 20 - 2.500 m2

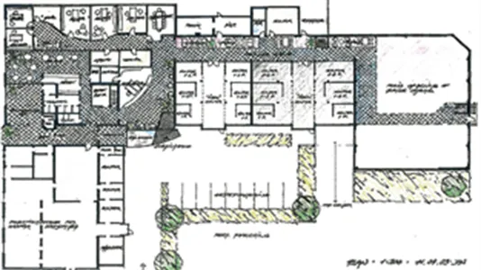
Erhvervscenter i udviklingsmiljø - kontor og lettere produktion

Erhvervscenter der består af kontor bygninger og lettere produktions lokaler på ialt 3300 kvadratmeter, der placerer sig i hestesko form omkring præsentabelt parkerings areal til ca. 70 køretøjer. Dørene er åbne for virksomheder, projekter og idéer, der kan og vil drage nytte af et kreativt og innovativt udviklingsmiljø som ser fordele i at dele viden, erfaringer og kompetencer indenfor medier, kommunikation, design, it, produktudvikling, kunsthåndværk, tjeneste og serviceydelser samt lettere produktion. Erhvervscenteret gør det let for virksomhederne, at komme i dialog med kompetencer og viden, de ikke selv besidder. Nye virksomheder kan leje areal efter behov se evt grundplanen. Lokaler fra 20 m2 2500 m2. Med central placering er mulighederne for tiltrækningen af arbejdskraft og udnyttelse af det naturlige kundepotientiale gode. Grundarealet er så stort, at der kan bygges til, hvis det bliver nødvendigt. Fællesnævner er lyst og evne til at udnytte husets fleksible rammer og infrastruktur til at være på forkant, til at vokse og udvikle sig. Erhvervscenterets målgrupper er små og mellemstore virksomheder typisk iværksættere eller virksomheder med udviklings potentiale. Håndværksvirksomheder tilbydes mindre opbevaringsplads til værktøj o.l. ligesom vi har en frokostklub, hvor man mødes over madpakke Erhvervscenteret tilbyder administrativ bistand f.eks.: Telefonpasning, bogføring m.v. efter virksomhedens behov. De er også forbindelsested til erhvervsråd og uddannelses institutioner

Information og data

Dette lagerlokale, som også kan anvendes til Lager eller Værksted, ligger på Sundbyvej i Snedsted. Snedsted har postnummeret 7752, og ligger i kommunen Thisted, som ligger i Region Nordjylland. Lokalet er i alt 2500 m2.